To see more information:

Andres Morell

Corporate business media and news feed

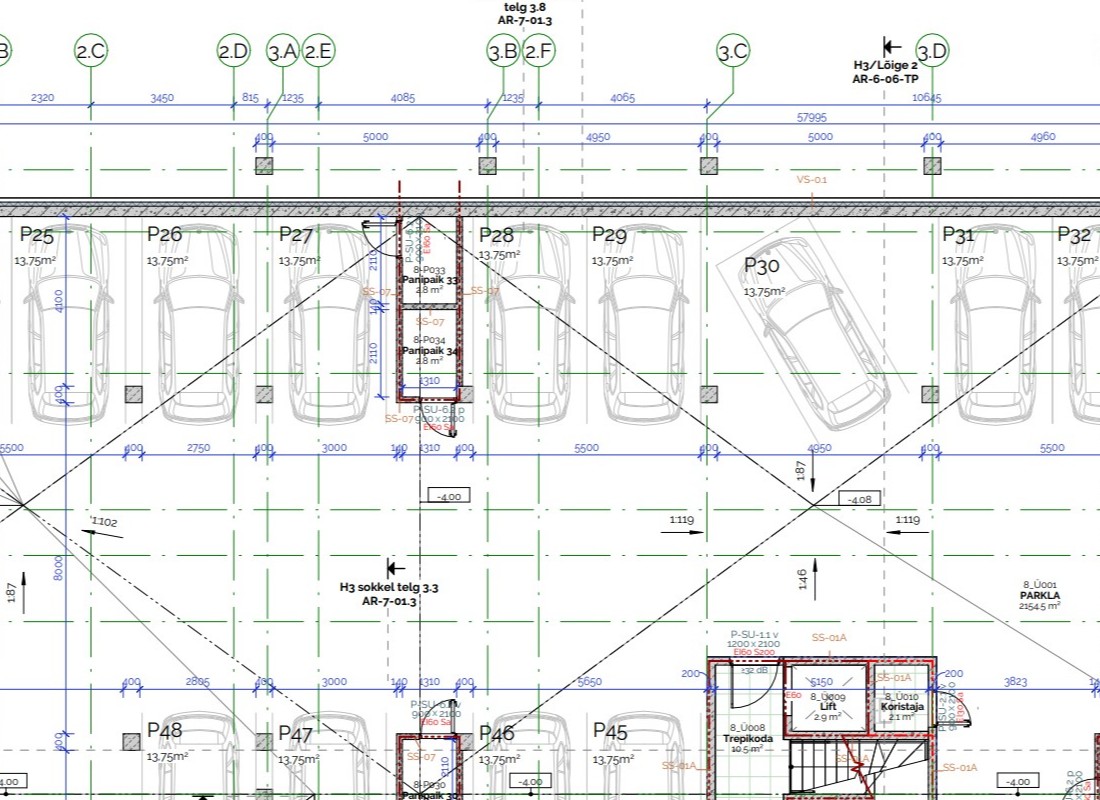
Parklate ja tööohutustähistuse projekteerimine – tagame ruumi ohutuse, sujuva liikumise ja selge visuaalse korra

Miks projekteerida juba enne värvimist või märgistamist? Tõhus parkla või tööstushoone laopind ei ole juhuslikult kujundatud — see on läbi mõeldud, kavandatud ja projekteeritud ruum. Kui investeerida algusest peale kvaliteetsesse planeerimisse (joonised, liiklus- ja jalakäijate trajektoorid, tähistused, ohutusalad), väheneb hilisem muutustööde vajadus ning paraneb kasutusmugavus, efektiivsus ja turvalisus. Millised komponendid kuuluvad heasse projekti? Eripära parkla- […] The post Parklate ja tööohutustähistuse projekteerimine – tagame ruumi ohutuse, sujuva liikumise ja selge visuaalse korra

Read from the original source parkline.ee

Dropdown

all articles

Epopõrandad: põhjalik ülevaade erinevatest lahendustest, hindadest ja olulistest aspektidest

Epopõrandad on üks kõige vastupidavamaid ja praktilisemaid lahendusi betoonpõrandatele. Need sobivad garaažidest kuni tööstusruumideni, sest epoksiidkate muudab
parkline.ee

Are you sure you want to delete this article?

Loader

Loader

App Ad

Scorestorybook Chrome extension

The Storybook extension tells you which company's website you are currently on and how reliable that company is today. download extension

See the background of the caller! Storybook App brings you direct contacts for 400,000 Estonian companies and individuals (managers, officials). The data is enriched with solvency and financial information.